Maison Individuelle - L’Haÿ les Roses

Une rénovation élégante et optimisée au sud de Paris

Située dans le sud du Grand Paris, cette magnifique maison individuelle a fait l’objet d’une rénovation complète visant à optimiser son agencement et son flux de circulation. L’objectif principal du projet était de moderniser l’espace tout en respectant l’âme de la maison et ses éléments architecturaux d’origine.

L’un des défis majeurs a été l’intégration harmonieuse de la cheminée existante, qui, grâce à notre intervention, s’intègre désormais parfaitement au salon sans paraître imposante. Le réagencement des volumes a permis de créer une circulation plus fluide entre les espaces de vie, favorisant luminosité et convivialité.

L’escalier, conçu dans un contraste élégant de noir et blanc, apporte une touche sophistiquée et intemporelle à l’intérieur, renforçant l’identité visuelle de la maison. Chaque détail a été pensé pour offrir un cadre de vie à la fois esthétique et fonctionnel, où confort et design se rencontrent avec harmonie.

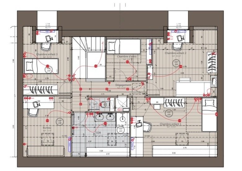
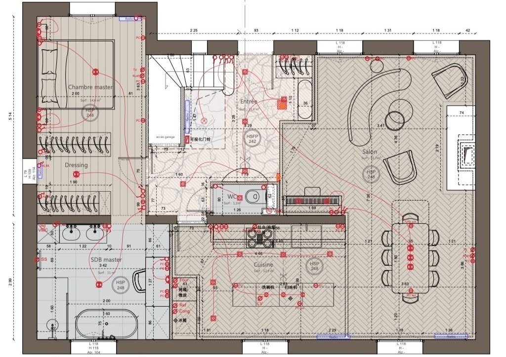
PLAN PROJET

MOOD-BOARD

SUIVI DE CHANTIER

Suivant
Suivant

Maison Individuelle, Neuilly sur Seine